螺旋闸门LMD |
| 产品型号: | LMD | 公称通径: | 200*200-3000*3000mm | 公称压力: | 0.1MPa |
| 产品材质: | 碳钢、不锈钢等 | 适用温度: | ≤425℃ | 适用介质: | 固体粉料、晶体料等 |
| 连接形式: | 法兰 |

螺旋闸门LMD结构特点及用途:
螺旋闸门LMD又名插板阀,闸板阀,按外形分为方形螺旋闸门和圆形螺旋闸门两种,按开启方式分为单向螺旋闸门和双向螺旋闸门两种,具有结构简单、开启灵活、重量轻、无卡阻、特别适用于各类固体物料和50mm左右块状、团状物料的输送及流量调节,安装不受角度限制,操作方便,能随时调整尺度。是粉料、晶粒料、颗粒料及小块物料的流量或输送量的主要控制设备,广泛使用在冶金、矿山、建材、粮食、化工等行业控制流量变化或迅速切断。
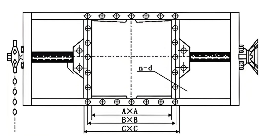
螺旋闸门产品外形连接尺寸:
| 类别 | A×A | B×B | C×C | L | H | N-d | 重量(kg) |
| 单向 | 200×200 | 256×256 | 296×296 | 820 | 100 | 8-Φ12 | 62 |
| 245×245 | 305×715 | 341×751 | 1620 | 100 | 8-Φ14 | 68 | |
| 250×250 | 306×306 | 346×346 | 930 | 100 | 8-Φ14 | 70.5 | |
| 300×300 | 356×356 | 396×396 | 1050 | 100 | 8-Φ14 | 81 | |
| 400×400 | 456×456 | 496×496 | 1250 | 100 | 12-Φ14 | 114 | |
| 450×450 | 510×510 | 556×556 | 1350 | 120 | 12-Φ18 | 130 | |
| 490×490 | 550×550 | 596×596 | 1440 | 120 | 16-Φ18 | 147 | |
| 500×500 | 560×560 | 606×606 | 1500 | 120 | 16-Φ18 | 153 | |
| 600×600 | 660×660 | 706×706 | 1710 | 120 | 16-Φ18 | 178 | |
| 700×700 | 770×770 | 820×820 | 1940 | 140 | 20-Φ18 | 213 | |
| 800×800 | 870×870 | 920×920 | 2140 | 140 | 20-Φ18 | 257 | |
| 900×900 | 974×974 | 1030×1030 | 2410 | 160 | 24-Φ18 | 325 | |
| 980×980 | 1054×1054 | 1110×1110 | 2570 | 160 | 24-Φ23 | 392 | |
| 1000×1000 | 1074×1074 | 1130×1130 | 2610 | 160 | 24-Φ23 | 428 | |
| 双向 | 600×600 | 660×660 | 706×706 | 2010 | 120 | 16-Φ18 | 200 |
| 600×1000 | 660×1074 | 706×1130 | 2870 | 120 | 20-Φ23 | 290 | |
| 700×700 | 770×770 | 820×820 | 2130 | 140 | 20-Φ18 | 290 | |
| 800×800 | 870×870 | 920×920 | 2240 | 140 | 20-Φ18 | 310 | |
| 900×900 | 974×974 | 1030×1030 | 2660 | 160 | 20-Φ23 | 380 | |
| 1000×1000 | 1074×1074 | 1130×1130 | 2870 | 160 | 24-Φ23 | 460 | |
| 1100×1100 | 1180×1180 | 1240×1240 | 3120 | 180 | 28-Φ23 | 500 | |
| 1200×1200 | 1280×1280 | 1340×1340 | 3310 | 180 | 32-Φ23 | 540 |

2
注: LMD-单向 I-手轮 Ⅱ-链轮,距地面小于1.7米用手轮,大于1.7米用链轮 链条节数M=0.105X-113(X是丝杆中心离地面度度)
螺旋闸门订购须知:
1、所有在本公司订购阀门,保质期为12个月,质量三包,售后无忧,终生提供售后保障;
2、订购时需要提供产品名称、产品型号、公称通径、公称压力,产品材质以便核实生产及发货;
3、对于无法提供产品型号及特殊工况的阀门可与我司销售部联系,为您选型合适的产品以满足工况需要;
4、劳伦斯阀门的主打产品有刀闸阀、通风蝶阀、铸铁镶铜闸门、渠道闸门、插板阀、矿浆阀、防爆阀、均压阀、放散阀、配水闸阀等产品,生产通径2"-80"(DN50-DN2000mm),压力等级150LB-2500LB(0.01MPa-42Mpa),工作温度-196℃~1200℃等高、中、低压阀门,材料主要有灰铸铁、球墨铸铁、铝合金、铜合金、碳钢、铸钢、合金钢、不锈钢等,产品广泛适用于环保、水利、市政、电力、石化、冶金、高层建筑、造纸、食品、制药等领域,并可按用户要求定制各种非标阀门。
| 上一产品:铸铁镶铜方闸门ZMF | 下一产品:渠道闸门QZM |


